28 Lancelin Drive MERMAID WATERS QLD
Prime Waterfront Land in Mermaid Waters Approved Plans Included – Rare Opportunity!
An exceptional waterfront real estate opportunity awaits in the sought-after suburb of Mermaid Waters, QLD. This dual-lot offering provides buyers with the flexibility to purchase individually or together, making it ideal for investors, developers, or those looking to build their dream waterfront homes.
Property Details:
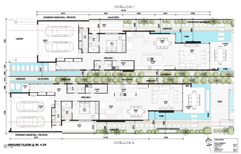
Lot 1 – 606 sqm
Lot 2 – 609 sqm
Waterfront frontage is 10 meters each lot.
Approved plans for 5 bedroom 4.5 bathroom double car garage and private swimming pool with river views.
East facing to the water. Open and wide water view, as well as the park and city skyline view.
Directly opposite to Pizzey Park with awesome privacy.
Quiet street.
Flexible Buying Options:
Purchase Lot 1 or Lot 2 separately for a prime piece of waterfront land.
Acquire both lots together for a larger development opportunity.
Premium Waterfront Lifestyle
Located in the prestigious Mermaid Waters, this rare waterfront land offers direct access to stunning waterways, providing an unbeatable lifestyle for those who love boating, fishing, or simply enjoying serene water views.
Unmatched Convenience
Close to beautiful beaches and coastal attractions.
Near top schools and shopping centers.
Easy access to public transport and major roads.
Surrounded by parks, cafes, and leisure amenities.
Within walking distance to shops, transport and Bond University.
Near excellent public and private schools.
Flowing wide canal with direct access to the broadwater and Stradbroke Island.
Short drive or bicycle ride to Gold Coasts best beaches.
Tightly held and sought after street.
With limited waterfront land available, this is a rare chance to secure a prime property in one of the Gold Coast’s most desirable suburbs.
Disclaimer: Matrix Global has not independently checked any of the information we merely pass on. We make no comment on and give no warranty as to the accuracy of the information contained in this document which does not constitute all or any part of any offer or contract by the recipient. Prospective purchasers/lessees must rely on their own inquiries and should satisfy themselves as to the truth or accuracy of all information given by their own inspections, searches, inquiries, advice, or as is otherwise necessary, all information given is given without responsibility.
Property Details:
Lot 1 – 606 sqm
Lot 2 – 609 sqm
Waterfront frontage is 10 meters each lot.
Approved plans for 5 bedroom 4.5 bathroom double car garage and private swimming pool with river views.
East facing to the water. Open and wide water view, as well as the park and city skyline view.
Directly opposite to Pizzey Park with awesome privacy.
Quiet street.
Flexible Buying Options:
Purchase Lot 1 or Lot 2 separately for a prime piece of waterfront land.
Acquire both lots together for a larger development opportunity.
Premium Waterfront Lifestyle
Located in the prestigious Mermaid Waters, this rare waterfront land offers direct access to stunning waterways, providing an unbeatable lifestyle for those who love boating, fishing, or simply enjoying serene water views.
Unmatched Convenience
Close to beautiful beaches and coastal attractions.
Near top schools and shopping centers.
Easy access to public transport and major roads.
Surrounded by parks, cafes, and leisure amenities.
Within walking distance to shops, transport and Bond University.
Near excellent public and private schools.
Flowing wide canal with direct access to the broadwater and Stradbroke Island.
Short drive or bicycle ride to Gold Coasts best beaches.
Tightly held and sought after street.
With limited waterfront land available, this is a rare chance to secure a prime property in one of the Gold Coast’s most desirable suburbs.
Disclaimer: Matrix Global has not independently checked any of the information we merely pass on. We make no comment on and give no warranty as to the accuracy of the information contained in this document which does not constitute all or any part of any offer or contract by the recipient. Prospective purchasers/lessees must rely on their own inquiries and should satisfy themselves as to the truth or accuracy of all information given by their own inspections, searches, inquiries, advice, or as is otherwise necessary, all information given is given without responsibility.